Localización: Estepona, Málaga.
Promotor: Ayuntamiento de Estepona
P.E.M.: 8.384.968 €
Fecha proyecto: Agosto 2023
Superficie aparcamiento: 8.719 m2
Superficie urbanizada: 6.272 m2
Nº Plantas: 3
Nº Plazas: 322
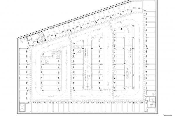
Descripción:
La solución planteada presenta un aparcamiento subterráneo de tres plantas de forma trapezoidal, forma condicionada por la edificación existente en superficie, ocupando la totalidad del ámbito de actuación descrito en el Pliego para las plantas destinadas a aparcamiento. El aparcamiento se formaliza interiormente con una banda perimetral de aparcamientos y una zona central donde se combinan bandas de aparcamientos y rampas de vehículos de circulación interior entre las distintas plantas. Los núcleos de comunicación vertical para peatones se sitúan, además de para cumplir las condiciones del CTE DBSI, pensando en su ocupación sobre la superficie de urbanización de tal manera que sean elementos que pasen desapercibidos en el conjunto del nuevo espacio público. Los locales de servicio e instalaciones del aparcamiento quedan situados aprovechando los cambios de dirección en las bandas perimetrales de aparcamiento, evitando así supeditar la configuración general.






